100) ? false : true; navIsShown = (window.pageYOffset > heroHeight) ? true : false; triggerTransitions = window.pageYOffset > (heroHeight / 2) ? true : false; if (navIsOpen && !atTop && !navIsShown) navIsOpen = false; ">
Toggle Navigation
8 Nimitz St, Greenville, SC 29609
Images
Floor Plans
Map
View Gallery
Slideshow
Photo Grid
Hide
Previous
Next
8 Nimitz St
Greenville, SC 29609
Images
Show more
Slideshow
Photo Grid
Hide
Previous
Next
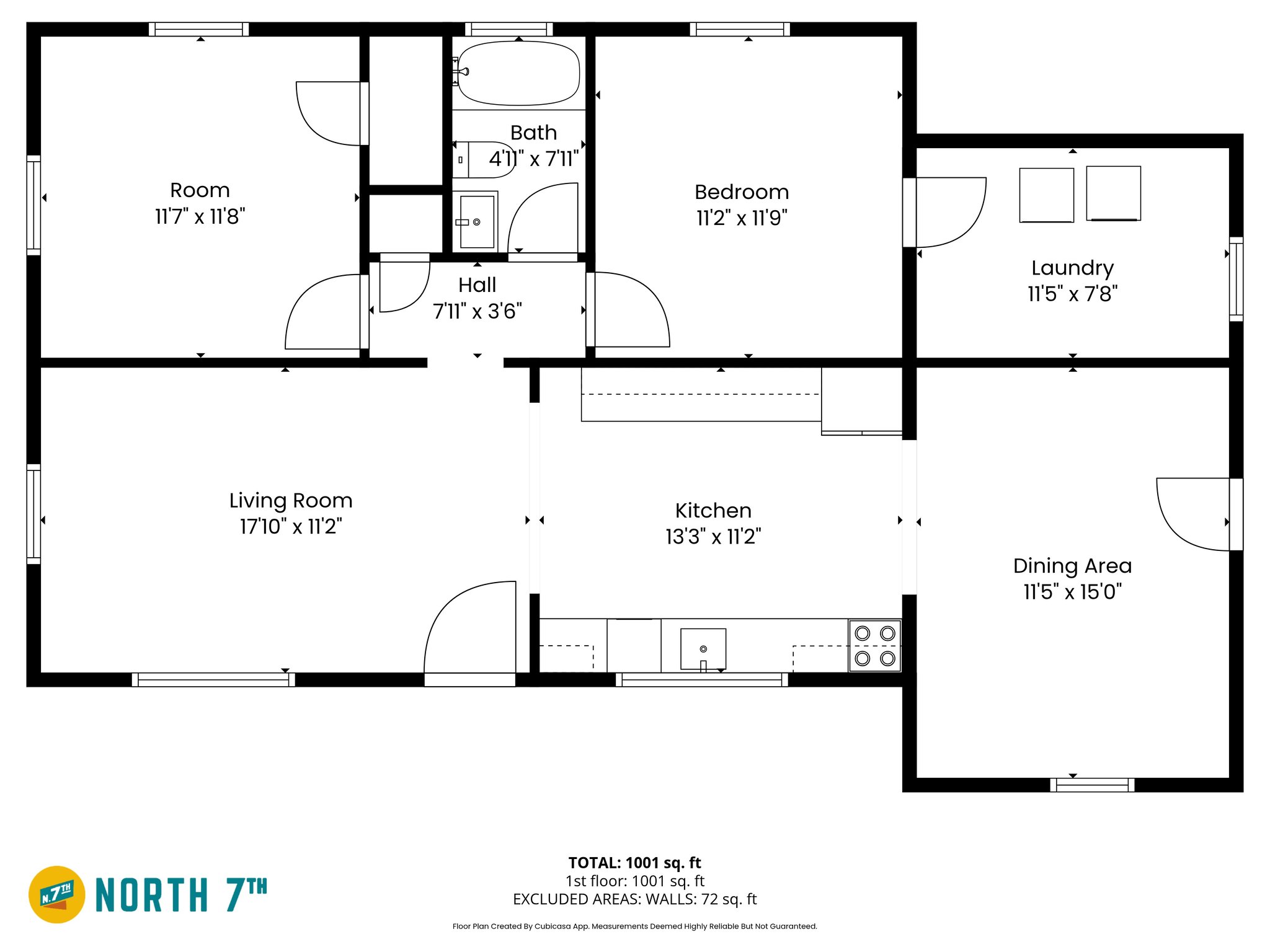
Floor Plans
Slideshow
Photo Grid
Hide
Previous
Next