100) ? false : true; navIsShown = (window.pageYOffset > heroHeight) ? true : false; triggerTransitions = window.pageYOffset > (heroHeight / 2) ? true : false; if (navIsOpen && !atTop && !navIsShown) navIsOpen = false; ">
Toggle Navigation
102 Mikenah Ct, Easley, SC 29640
Images
Floor Plans
Map
View Gallery
Slideshow
Photo Grid
Hide
Previous
Next
102 Mikenah Ct
Easley, SC 29640
Images
Show more
Slideshow
Photo Grid
Hide
Previous
Next
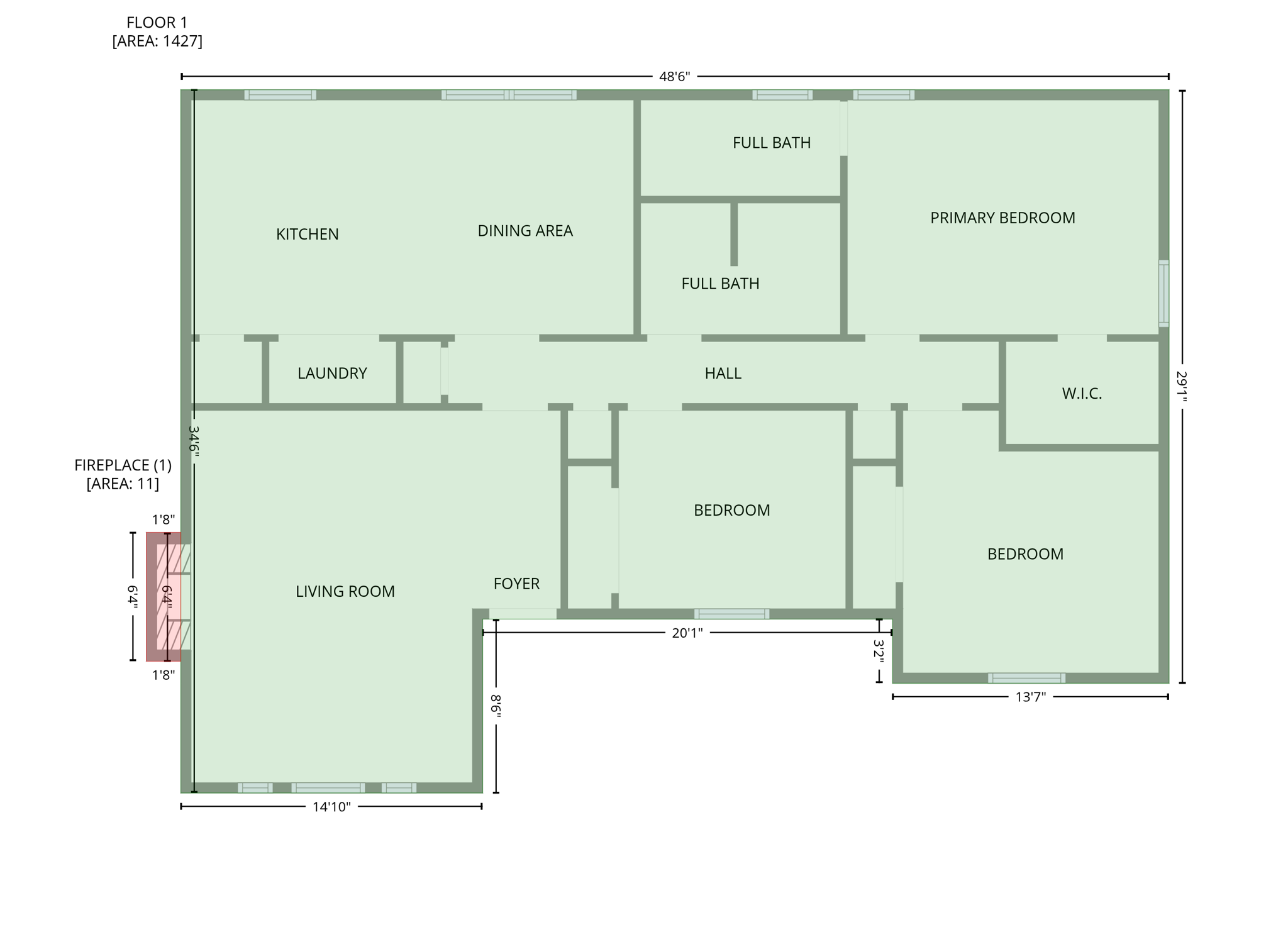
Floor Plans
Slideshow
Photo Grid
Hide
Previous
Next